Início | Main
Sobre | About
Projetos | Projects
Serviços | Services
Contactos | Contacts
More
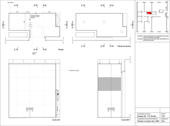
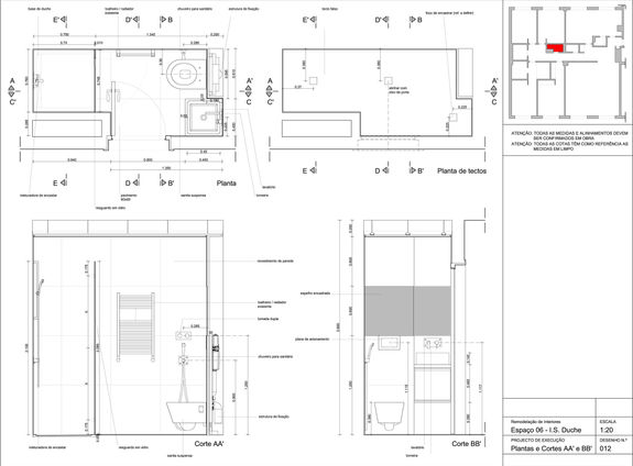
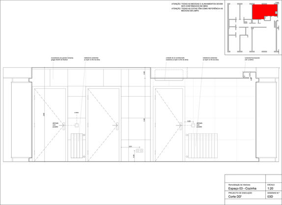
SEGMENTO: Habitação - Apartamento unifamiliar
PROJETO: Requalificação e Projeto de Interiores
ANO: 2014